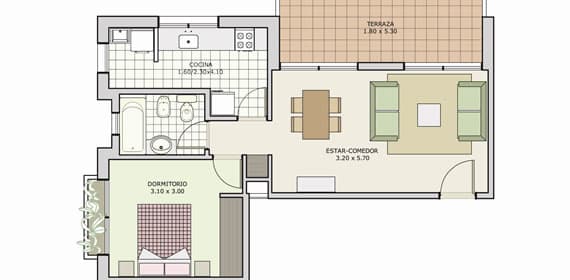
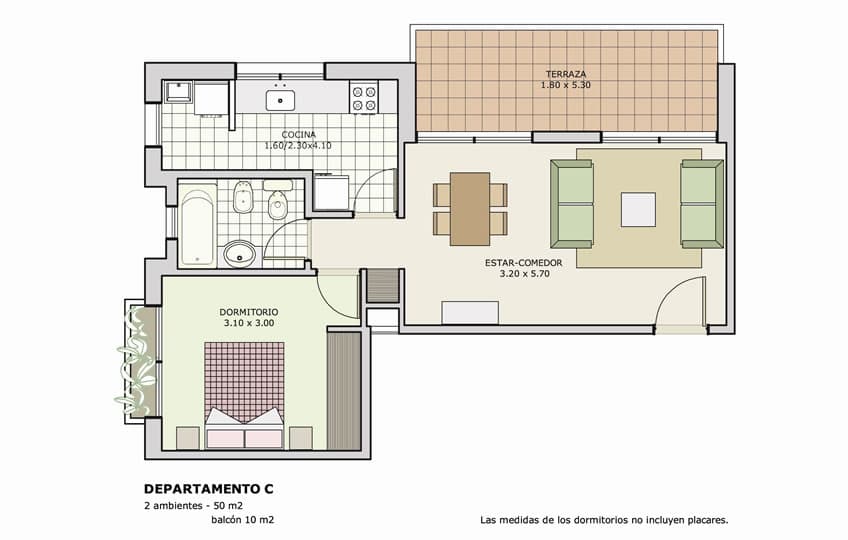
Escobar Plaza

Viviendas Multifamiliares

26 departamentos | 5 locales comerciales | 5 oficinas
Comitente: COLUVI S.R.L.

César Díaz 570 - Escobar - Pcia. de Buenos Aires
Proyecto, Dirección y Gerenciamiento de la Construcción